過去物件紹介

地域で絞り込み

構造で絞り込み

間取りで絞り込み

該当する物件は見つかりませんでした。

札幌市豊平区平屋新築住宅 外観イメージ
札幌市豊平区平屋新築住宅 外観イメージ
札幌市豊平区平屋新築住宅 外観イメージ 昼
札幌市豊平区平屋新築住宅 外観イメージ 夜
札幌市豊平区平屋新築住宅 1階間取り図

高断熱×太陽光で叶える、快適で開放的な
平屋暮らし

高断熱等級7・太陽光パネル搭載の平屋新築住宅。 北海道の気候にも対応した高性能住宅で、冬も暖かく快適に暮らせます。

約28帖の広々LDKは、開放感あふれる設計。 大きな窓から自然光を取り込み、明るく心地よい空間を実現しています。

家事動線・収納計画にも配慮し、日々の生活をより快適に。 デザイン性と機能性を兼ね備えた、今注目の平屋住宅です。

建築場所 北海道札幌市豊平区
お客様名 D様邸 平屋新築住宅
構造 木造平屋建て
延べ床面積 129.60㎡
間取り 4LDK
中の島A棟新築住宅 外観イメージ
中の島A棟新築住宅 外観イメージ
中の島A棟新築住宅 外観イメージ 夜
中の島A棟新築住宅 1階間取り図
中の島A棟新築住宅 2階間取り図
中の島A棟新築住宅 2階間取り図プラン1
中の島A棟新築住宅 2階間取り図プラン2

家事ラク動線と1階で完結
ゆとりある暮らしの住まい

家事ラク動線と1階完結で暮らしやすさを追求した新築住宅。
可変型2階プランで家族構成の変化にも柔軟に対応でき、
吹抜けのある明るく開放的な住まいです。
リビング天井の天窓で明るさを重視しております。

建築場所 北海道札幌市豊平区
お客様名 中の島A棟新築住宅
構造 木造2階建て
延べ床面積 103.68㎡
間取り 2LDK~5LDK
中の島B棟新築住宅 外観イメージ
中の島B棟新築住宅 外観イメージ
中の島B棟新築住宅 外観イメージ 夜
中の島B棟新築住宅 1階間取り図
中の島B棟新築住宅 2階間取り図
中の島B棟新築住宅 2階間取り図プラン1
中の島B棟新築住宅 2階間取り図プラン2

家事ラク動線と1階で完結
ゆとりある暮らしの住まい

家事ラク動線と1階完結で暮らしやすさを追求した新築住宅。
可変型2階プランで家族構成の変化にも柔軟に対応でき、
吹抜けのある明るく開放的な住まいです。

建築場所 北海道札幌市豊平区
お客様名 中の島B棟新築住宅
構造 木造2階建て
延べ床面積 103.68㎡
間取り 2LDK~5LDK
札幌市南区新築住宅 外観イメージ
札幌市南区新築住宅 外観イメージ
札幌市南区新築住宅 外観イメージ 夜
札幌市南区新築住宅 1階間取り図
札幌市南区新築住宅 2階間取り図

光と風を感じる開放的な住まい

リビング上に4.5畳分の吹抜けを備え、2階居室の吹抜け側を開放。
それにより、光と風を十分に感じる住まいを設計いたしました。

建築場所 北海道札幌市南区
お客様名 A様邸
構造 木造2階建て
延べ床面積 88.09㎡
間取り 3LDK
札幌市豊平区新築住宅 外観イメージ
札幌市豊平区新築住宅 外観イメージ
札幌市豊平区新築住宅 外観イメージ 夜
札幌市豊平区新築住宅 1階間取り図
札幌市豊平区新築住宅 2階間取り図

メゾネットタイプの賃貸アパートで一戸建て住宅の様な生活

賃貸アパートなのに家の中に階段があり、十分な部屋数。
上下で生活するので生活音が気にならない造り。

建築場所 北海道札幌市豊平区
お客様名 O様メゾネットタイプ賃貸アパート
構造 木造2階建て
延べ床面積 73.71㎡+73.71㎡
間取り 3LDK+3LDK
川沿A棟新築住宅 外観イメージ
川沿A棟新築住宅 外観イメージ
川沿A棟新築住宅 外観イメージ 夜
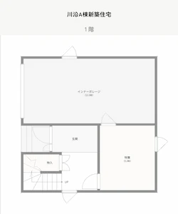
川沿A棟新築住宅 1階間取り図
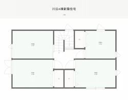
川沿A棟新築住宅 2階間取り図
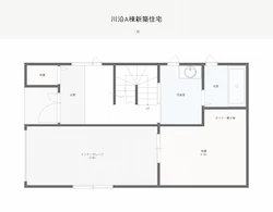
川沿A棟新築住宅 3階間取り図

インナーガレージで快適に暮らす、都市型3階建て住宅

インナーガレージを備えた、都市部でも快適に暮らせる3階建ての新築住宅です。 雨や雪の日でも濡れずに出入りでき、日々の動線を快適にします。

1階にガレージと水回りを集約し、2階は明るく開放的なLDK、 3階は居室を確保した、暮らしやすさと機能性を両立した住まいです。

建築場所 北海道札幌市南区
お客様名 川沿A棟新築住宅
構造 木造3階建て
延べ床面積 132.84㎡
間取り 3LDK
川沿D棟新築住宅 外観イメージ
川沿D棟新築住宅 外観イメージ
川沿D棟新築住宅 外観イメージ 夜
川沿D棟新築住宅 1階間取り図
川沿D棟新築住宅 2階間取り図
川沿D棟新築住宅 3階間取り図

インナーガレージで快適に暮らす、都市型3階建て住宅

インナーガレージを備えた、都市部でも快適に暮らせる3階建ての新築住宅です。 雨や雪の日でも濡れずに出入りでき、日々の動線を快適にします。

1階にガレージと大きい物置、2階は明るく開放的なLDK、 3階は居室を確保した、暮らしやすさと機能性を両立した住まいです。

建築場所 北海道札幌市南区
お客様名 川沿D棟新築住宅
構造 木造3階建て
延べ床面積 117.25㎡
間取り 3LDK